Berg 1:8,1, Vallentuna
Jägarbo är ett timrat hus som används som sommarhus av två bröder med familjer. De hörde av sig till oss för att få hjälp med att inreda två separata entréer och två badrum, något som huset saknade.
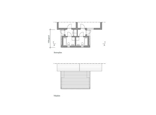
Resultatet blev en liten tillbyggnad på husets norra gavel. Huset ligger i det gamla kulturlandskapet på Berga gård i Frösunda och är ett riksintresse för kulturmiljövården. Utformningena av tillbyggnaden skedde därför i samråd med kommunens antikvarie. Tillskottet på 19 kvadratmeter rymmer två badrum utrustade med badkar och tvättmaskin, samt två små hallar. Ovanpå taket finns en terrass.
Byggnaden är täckt av ett rött raster, som både både fungerar som spaljé och som räcke för terrassen. Konstruktionen är enkel. Betongplatta på mark och väggar av lättklinkerblock. Terrassen är en separat träkonstruktion som vilar på blockmuren. Både trä och murar är målade i röd falufärg, lika huvudbyggnaden, och är ett diskret, modernt tillskott till den gamla sommarstugan.
Fakta
- År: 2018
- Beställare: Privat
- Kategori: Hem
- Plats: Storstockholm