Vitsippan 13, Danderyd
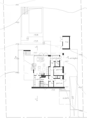
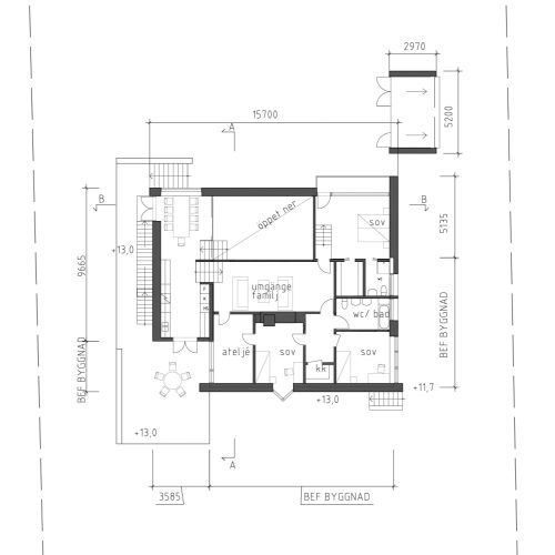
Bostaden för Kristina Tjäder, en av systrarna bakom klädmärket Dagmar, hennes man och deras två döttrar ligger i Stocksund. På tomten fanns tidigare ett typhus från 1947 i ett plan om 90 kvadratmeter plus källarplan i souterräng där familjen bodde. Genom en radikal ombyggnad har vi förstorat huset med en påbyggnad med en lanternin och tillbyggnader åt norr och väster som utnyttjar hela den befintliga byggrätten i stadsplanen från 1938. Efter ombyggnaden är bostadsytan 310 kvadratmeter.
Mot gatan vänder huset en sluten fasad. Entrén är förlagd i det nedre planet i husets nordöstra hörn, och nås via infarten. Från entrén når man, via kapprum och toaletter, ett rum öppet i två våningar. Det stora rummet sig ut mot trädgården får dessutom överljus från lanterninen på taket. Den inre delen av rummet ligger under en balkong på övre plan. Där finns en spishörna med inbyggda soffor.
Från detta centrala rum i två våningar leder en trappa till köket, som ligger en halv våning upp, och därifrån når man det övre vardagsrummet, ovanpå balkongen, mot vilket sov- och badrum vetter.
Fakta
- År: 2014
- Beställare: Privat
- Kategori: Hem, Hus
- Plats: Storstockholm