Vättersö 1:98
Vättersö ligger i Stockholms norra skärgård, mellan Ljusterö och Blidö.
Tomten med nummer 1:98 ligger på ett skogklätt berg på norra delen av ön, nära dess högsta punkt. Den styckades av 1956, och 1960 stod huset på tomten klart.
Det är byggt i betongsten som putsats och taket är täckt med tegel.
Huset står på en bergsknalle, och den norra sidan hade tidigare en hög sockel eftersom ritningen huset är byggt efter visar plan mark.
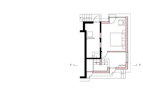
Huset byggdes till 2011-2012 genom att takfallet förlängdes åt norr, med en hall och sovrum i nivå med marken på norra sidan. Nivåskillnaden tas upp med en trappa. På den övre nivån inredde vi ett badrum, vilket huset tidigare saknade.
Vardagsrum, kök och det gästrum, troligen tänkt som matrum i den ursprungliga delen, bevarade vi i befintligt skick.
Trappan och hallen ligger längs det befintliga husets norra fasad och får, liksom badrummet, ljus från takfönster.
Fakta
- Beställare: Privat
- Kategori: Hem
- Plats: Storstockholm












