Hillesskär, Ekerö

Restaurering av 1800-talsvilla på Färingsö

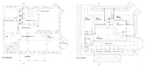
Beställaren köpte huset i mitten av 90-talet och genomförde en genomgripande renovering. En brand orsakad av fel i elsystemet skadade dock huset 1998, och vi fick i uppdrag att restaurera och renovera byggnaden. Rummen ovanför elrummet på bottenvåningen eldhärjades. Elden spred sig även upp genom huset och ödelade övre våningen och vinden, medan bottenvåningen vattenskadades.

Eftersom huset bestod av två identiska lägenheter, ville beställaren återställa bottenvåningen men bygga om den brandskadade lägenheten på övre plan till en bekväm bostadsvåning efter sina egna behov.

De brandskadade delarna av vindsbjälklaget togs bort för att skapa större rymd på övre plan. Dessa ersattes delvis av en entresolvåning av stål. Nya takfönster ger överljus till ett stort vardagsrum i övre planet. Ett badrum byggdes i ett tidigare sovrum och hela huset restaurerades och försågs med ny inredning. Bland annat fick det nya öppna spisar och skåp- och garderobsinredningar. Utvändigt restaurerades huset till sitt ursprungliga utseende, men kompletterades med balkong på taket till burspråket mot sjön och en terrass utanför köket.

Fakta