Söderboda 2:34, Östhammar

Ett litet hus i skogen

Vår beställare hade letat länge efter ett lämpligt hus att ha som fritidsboende i eller kring Söderboda på Gräsö utan framgång. Det var svårt att hitta ett hus som passade i pris, storlek och karaktär. Däremot hittade hon en skogstomt som passade och hon bad oss rita ett bygglov på ett litet hus för en person. Från början var det tänkt att en byggymnasieutbildning i Uppsala skulle bygga huset på skolan och sen transportera ut det till Gräsö på lastbil. Därför behövde huset hålla sig innanför vissa mått. Nu blev det inte så utan snickare lokalt på ön kunde hjälpa till att bygga huset, men de kompakta måtten blev de samma.

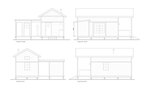
Resultatet blev ett enkelt litet hus med en rymlig känsla. Entrédörren nås från ett uterum där diskbänken står under tak och inbäddad i grönska. Innanför entrédörren finns ett litet kök till höger och avhängning till vänster. Längre in finns plats för ett matbord bredvid en liten kamin. Här är det öppet nästan fyra meter upp till nock. I de inre delarna finns plats för en eller två sängar under ett sovloft. Under lofter är det ståhöjd. Sovloftet når man med en stege. Hjärtat i projektet är en stor terrass utanför pardörrarna på husets långsida. Terrassen är inramad av huvudbyggnaden, en förrådsbyggnad och en klipphäll.

Fakta