Herresta, Strängnäs

Ombyggnad av kataloghus

Vi har hjälpt våra beställare med en ombyggnad av deras hus, för att matcha de vackra omgivningarna mellan Mariefred och Stallarholmen.

Huset ligger på en tomt som är avstyckad från Säteriet Herresta. Läget var det som gjorde att våra beställare fastnade för huset, som ligger på en höjd vid Herrestaviken i en ekskog, inte långt från godsets huvudbyggnad.
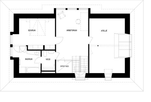
Själva huset är dock ett kataloghus med stora planmått som gör rummen mörka. Trappan mellan övre planet och entréplanet var smal och trång, och källaren gick endast att nå utifrån.

Dan Jonsson är grafisk formgivare och tidigare professor i illustration på Konstfack. Åsa Marstrander är konstnär. Deras behov var ett nytt kök, samt ateljéer och sovrum med tillhörande badrum på övre våningen.

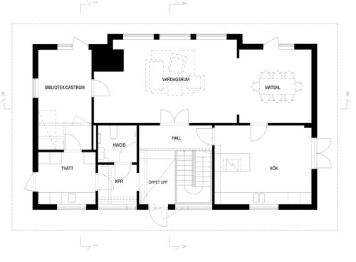
En ny trappa som förbinder alla tre planen leder upp till ateljén och en ny sovrumsdel. På entréplanet har kök, badrum och tvättstuga byggts om, och ett bibliotek inretts. I källaren finns nu ett arkiv.

Mot infarten vänder huset en fasad som har fått helt nya fönsterplaceringar. Lågt sittande fönster ger dagsljus till källaren. I interiören har rummen fått nya material. Nya massivdörrar i ask matchas av breda foder och socklar i samma träslag. Hall, kök och tvättstuga har försetts med golv av Höganäsplattor. Köket har fått en ny inredning med bland annat bänk i carraramarmor runt spisen.

Fakta