Kv. Loket 16, Stockholm
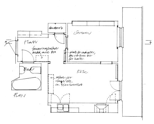
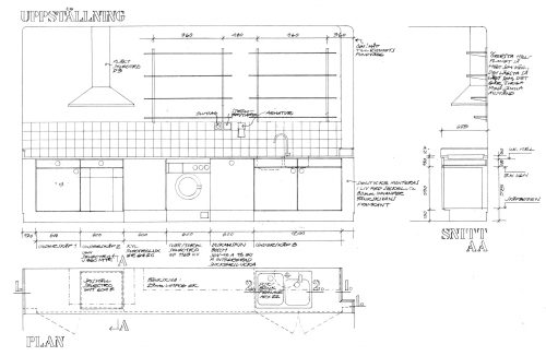
Vår beställares lägenhet var en typisk funkisetta med litet arbetskök, matplats och allrum. Vi ritade om planlösningen och placerade en ny köksuppställning i allrummet. På så sätt fick lägenheten ett mindre sovrum och en mer samtida social karaktär. En privat del kan stängas till och i det större allrummet kan man bjuda in till stora middagar.
Fakta
- År: 2007
- Beställare: Privat
- Kategori: Hem
- Plats: Storstockholm





